Certified Modular Home Floor Plans
You may have spent a fair amount of time fantasizing about your dream home. However, some people tend to draw a blank when the time comes to turn that dream into a reality. These Certified Modular Home Floor Plans can give you a place to start. Questions about what you would like always help to determine what you need and want in a floor plan. These questions will help you outline your desires, lifestyles, and priorities for your living space.
You may have even more than these common questions. Bring any questions or ideas to us and we can help you determine how to have a wonderful floor plan for your new log cabin home.
View All Floor Plans
Floor Plans FAQs
Reviewing floor plans and considering modifications to make your certified log cabin just right for you is fun!
You may also have some questions about a particular floor plan that you like.
We are here to work with you to customize any floor plans.
Here are some answers to questions we often get asked.
What is a floor plan?
Floor plans are scale drawings that show the relationship between rooms, spaces, and physical features viewed from above.
They provide a way to visualize how people will move through and use a space.
Can floor plans be modified?
Yes!
All floor plans can be modified to suit your desires. There are limitations, and we will happily work with you to customize any cabin floor plan to meet your needs and desires.
What is included in a floor plan?
- All of your living and working spaces. Your cabin floor plans will indicate the location and setup of bedrooms, hallways, bathrooms, the kitchen, and closets.
- Room layouts.
- Location of doors and windows.
- Deck layouts.
Are floor plans the same as an elevation drawing?
An elevation drawing is usually the next step after a floor plan. Elevations and floor plans often go hand in hand.
A floor plan offers a bird’s eye view of the entire floor. An elevation shows the exterior view from the sides, as if you were looking at a photo of the home from eye level.
Can you suggest how to future-proof my floor plan?
Planning for the future ensures you will love your log cabin for years to come. You can’t predict the future precisely, but you should consider what life will look like for you and your family over the next 10-20 years.
Do you see yourself entertaining over long weekends? If so, you may want to opt for an open floor plan that welcomes guests the minute they step through the door. Do you see yourself caring for an older relative, or will your children grow up with their own families?
To envision how you intend to use your home in the future allows us to work with you to design a floor plan well suited to now and 10 or 20 years from now.
Open Floor Plan Layout
All Floor Plans
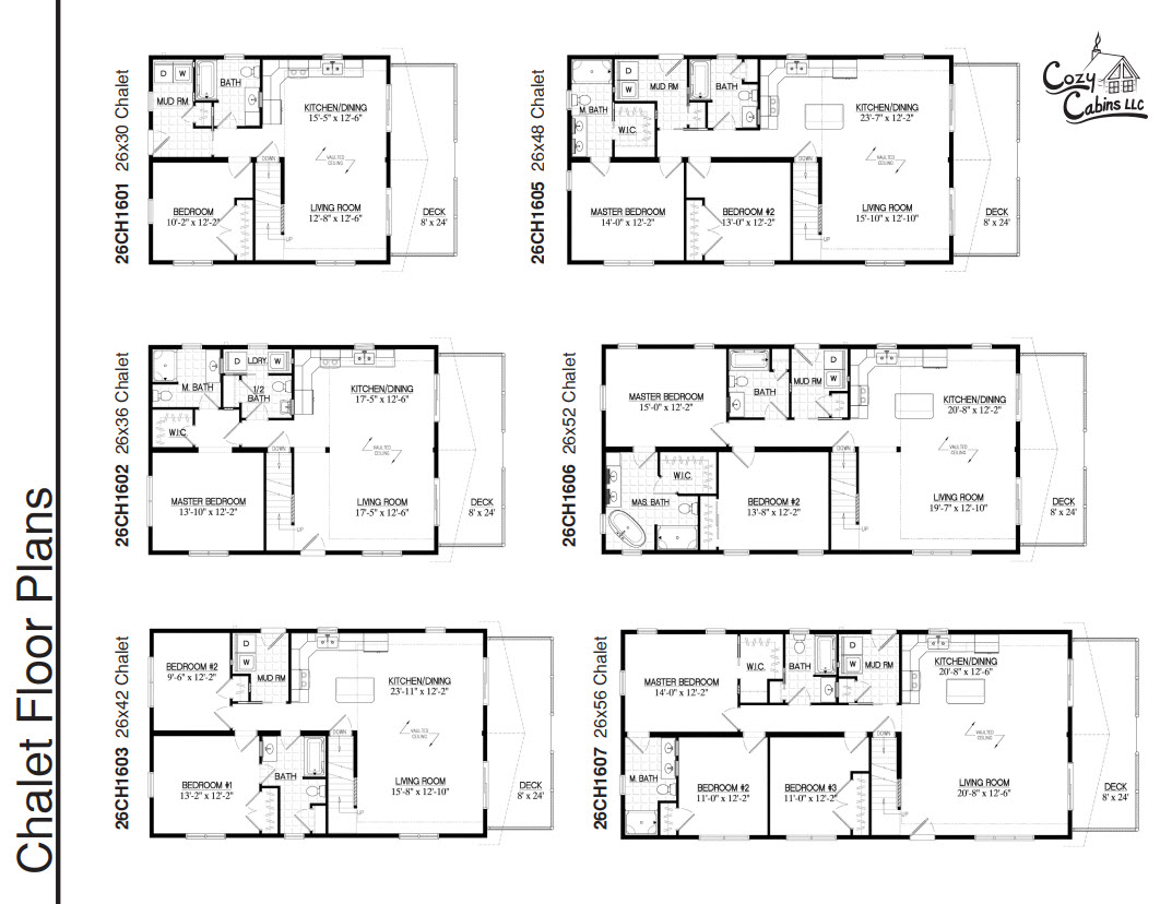
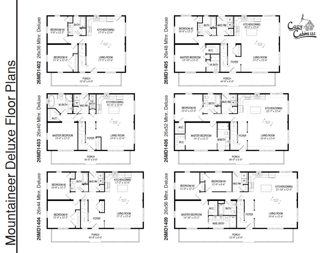
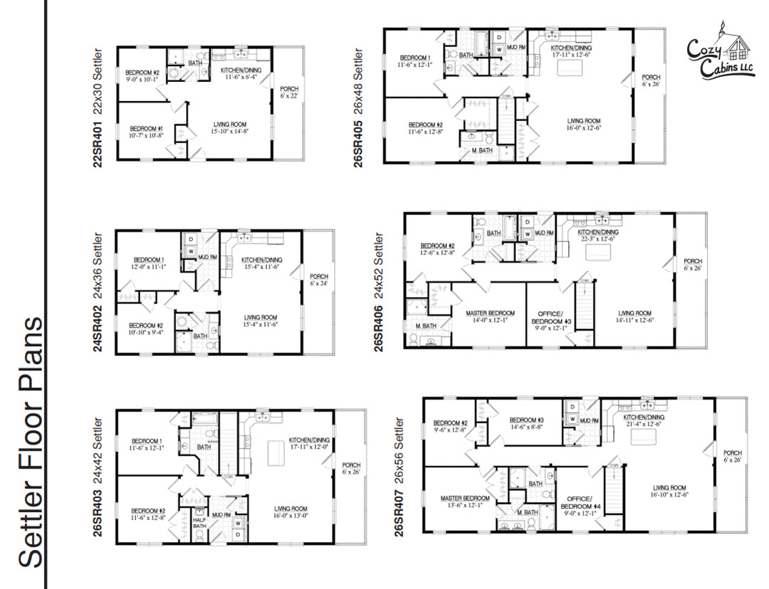
Each of these floor plans is a reference. Most can be modified to create the right floor plan for you.
Certified Modular Log Homes can come in 24′, 26′, 28′ and 30′ Wide.
Additionally: The Settler and Frontier can come in 22′ Wide.
Each floor plan is a PDF file; you may download any floor plan as often as you like. Feel free to draw on it and mark it up as preparation for any meeting with us. We encourage you to imagine what you would like for your floor plan.
Together, we can make it happen!
Or, click here to view all Cozy Cabin Floor Plans.
Certified Modular Home Floor Plans by Cabin Type
Here is a sample of Musketeer floor plans. We can customize your floor plans to meet your needs and desires.

Click on the image above, and the floor plan file will open in a new window. Right-mouse, click on the floor plan, and save the image to your computer.
Carriage Shed Certified Modular Homes
Is log siding not exactly your style? Other external sidings are available - ASK US!
We have a fine selection of high-quality certified modular log homes that are manufactured by Cozy Cabins LLC of Pennsylvania. We can add customizations to make them very special for your specific needs and desires.
Certified homes are approved in the states highlighted in green.






